Kako bi tvrtka Navela proslavila 25 godina postojanja i uspješnog poslovanja na području zastupanja i distribuciji brodskih motora, odlučili su na tu obljetnicu sagradit novi poslovni prostor koji bi objedinio sve njihove potrebe u novi reprezentativni objekt. Do izgradnje novog objekta tvrtka je bila smještena na niz odvojenih lokacija (administracija, skladište, servis itd.) što je otežavalo njihov rad i logistiku poslovanja.
Nova poslovna zgrada smještena je na pravilnoj pravokutnoj parceli u industrijskoj zoni u Puli. Anonimnost parcele na rubu grada potvrđuje i to da se nalazi na raskršću sekundarnih prometnica te ispod dalekovoda. Pristup parceli osiguran je sa sjeverne strane sa javne prometnice. Kolna komunikacija unutar parcele riješena je internom prometnom površinom uz njenu istočnu granicu.
Tema industrijskog objekta u industrijskoj zoni reinterpretiran je kroz koncept manjih arhetipskih volumena. Projekt poprima trodimenzionalnu formu kroz sklop pet osnovnih volumena, čiji prostorni odnosi i konstantne promjene perspektive stvaraju niz dinamičnih vizura uzduž oplošja objekta. Ritmičnim nizanjem crnih volumena duž perimetra parcele stvorena je cjelina sa jasnom granicom između unutarnjeg i vanjskog prostora. Time se omogućilo usitnjavanje mjerila i stvaranje prostornog odnosa mjerila korisnika i mjerila industrijskog objekta.
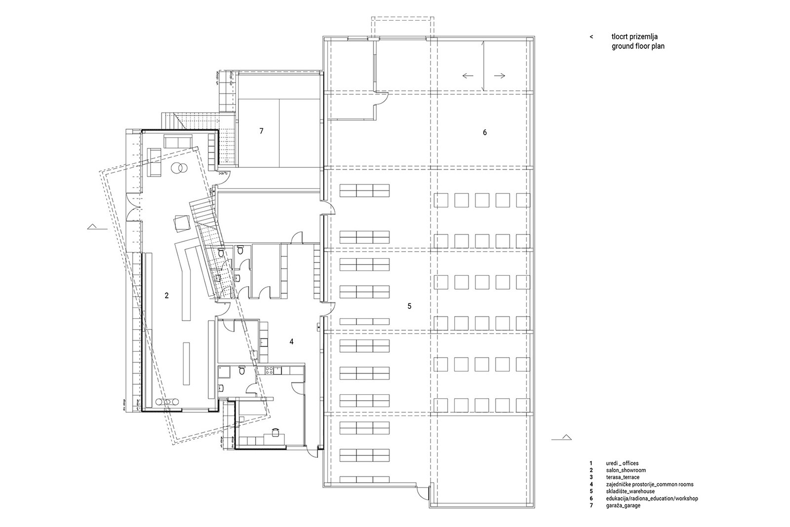
Osnovni volumeni su dimenzija cca 6x5x30m. Funkcionalna šema i različite namjene prate nizanje i volumetrijsku podjelu. Volumeni se nižu po svojoj dužoj osi, kompenetriraju i superponiraju. Uzimajući u obzir specifičnosti funkcioniranja tvrtke Navela, program je podjeljen u tri osnovne funkcionalne cjeline: 1/ izložbeni 2/ servisni 3/uredski prostor 4/skladišta opreme i 5/ skladište motora.
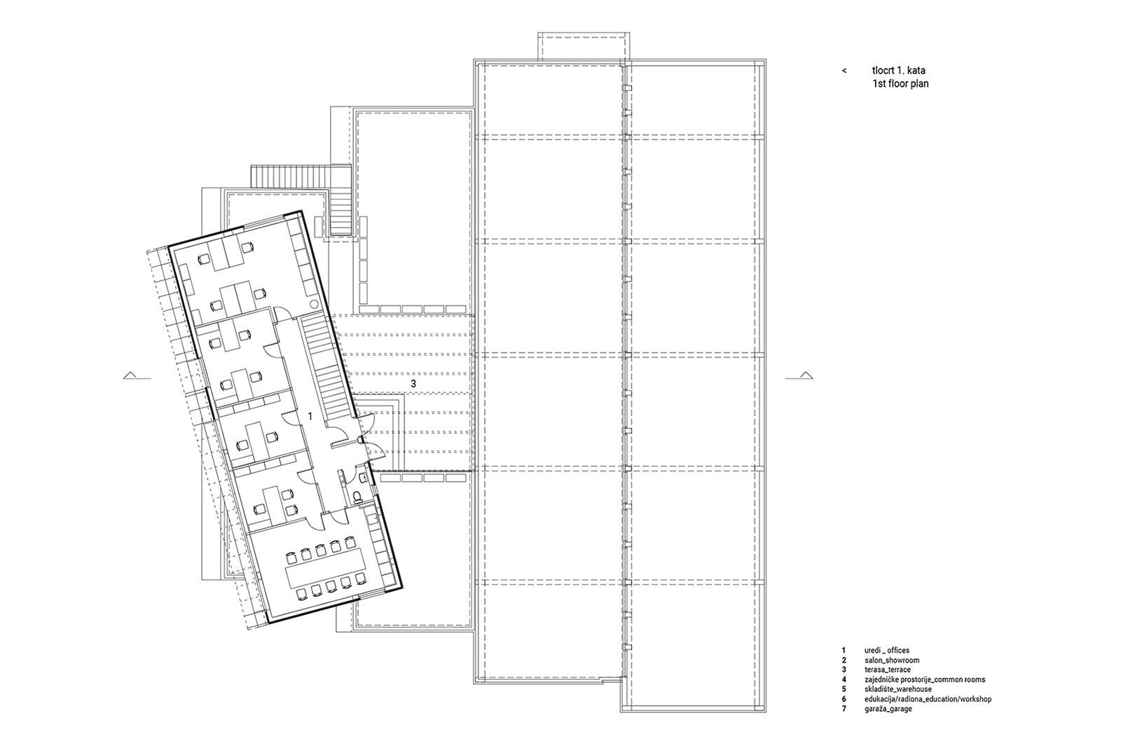
Funkcionlna dispozicija unutar objekta doslovno prati nizanje volumena, te gradira prolaskom kroz objekt od javnih prostora na ulazu namjenjenih klijentima do privatnih pomoćnih prostorija osoblja i skladišta na kraju zgrade, te uredski prostori kao jedini volumen koji je smješten na katu. Natkrivena terasa na krovu prvog volumena postaje ekstenzija uredskog prostora na katu, stvarajući ambijent za odmor i relaksaciju. Orjentacija staklenih stijena na sjever, kako ureda tako i skladišta, omogućava ugodno difuzno svjetlo pri radu.
Eksterijer zgrade materijaliziran je u ekspresivnu crnu ventiliranu fasadu od alucobond ploča koja objedinjuje i naglašava kose kuteve volumena, stvara skulpturalnu formu zgrade te pokazuje energiju i aktivnost koja se odvija unutar zgrade. Crna boja fasade se referira i predstavlja svojevrsni omaž osnovnoj djelatnosti tvrtke.
Anonimno raskršće u industriskoj zoni postalo je mjesto, mjesto pored kojeg se zaustavlja, prolazi i bilježi grad.
Leonid Zuban, Dino Krizmanić
SuradnikFranko Andrijančić
KonstrukcijaKoning projekt d.o.o. Pula, Denis Bolonović
InstalacijeUrbis d.o.o. Pula, Učka konzalting d.o.o. Pazin
Rasvjeta i upravljanjeSkira d.o.o. Pula, Dean Skira
investitorNavela d.o.o.
lokacijaIndustrijska zona, Pula
namjenaPoslovni objekt
realizacija2018.
površina1.150 m2
glavni izvođačIstrabau d.o.o., Pazin
izvođač fasadeČaržavec, obrt za završne radove, Veliko Trgovišće
fotografijeIgor Zirojević, arhiva Molo Zero